Land
Rivercrest Yandina

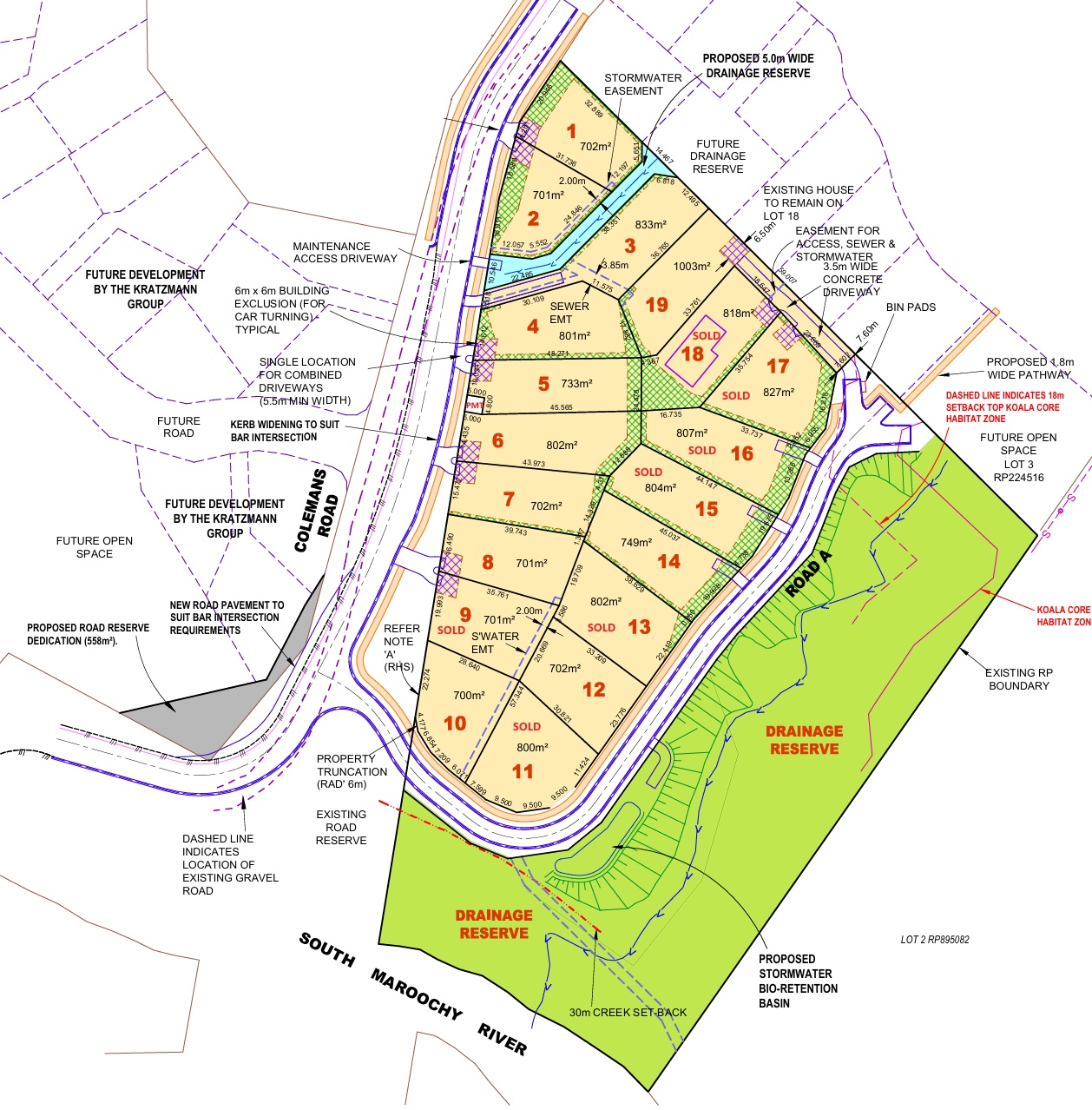
Illustrative plan only. Lot sizes and dimensions are approximate and subject to final survey and council approval.
www.rivercrestyandina.com.au
Miguel Rojano
0417582740
| Property Address | ? |
|---|---|
| Listing Price | ? |
| Property Type | ? |
The Rise Victory Heights (Sold Out)
